2D CAD/CAMたまごWin
CAD
効率と操作性を求め続ける
IED(IntelligentEventDriven)/オートスナップ
作図したい要素メニュー(点・線・円)とピックした要素や入力値からオペレータの意図を推測し、図形を作成。オートスナップは、点をサーチするとき、カーソル位置近傍の図形要素、端点、交点、中点のいずれかにスナップ。
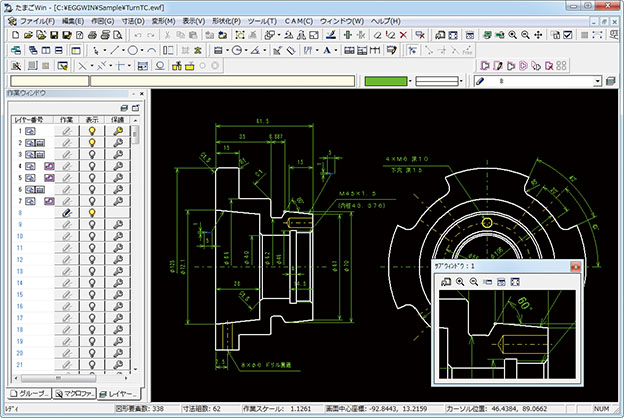
機械部品形状を効率よく作図
「円列」は、配置する円・直線を入力するか、既存の要素をヒットし、等間隔に3重円までの円群を作図。「点列円弧補間」は、XY座標の点列ファイルから全ての点を円弧でなめらかに接続した形状を作図します。
機械部品加工をサポート
「接続状況表示」要素の端点ごとに接続要素の数と交点か接線かの接続状態を表示。「一括穴径変換」指定した範囲の円の直径を全て同じ値に変更。「公差補正値設定」二面幅に指示された公差をもとに補正値を設定します。
CAM
培った経験を最大限に生かす
あらゆる種類の工作機械に対応
「マシニングプロセッサ」マシニングセンタ、五面加工機、はもちろん5軸制御の多面加工機等にも対応。旋削加工には「旋盤プロセッサ」、ワイヤ加工には「ワイヤプロセッサ」がスタンバイ。
加工指示ツリー/パターン輪郭
「加工指示ツリー」は、加工指示を加工面に分けて表示し、加工指示修正、加工複写、削除、順序の変更を指示。「パターン輪郭」は、形状に対して複数工程の加工指示を設定。パターンの登録、呼び出しが可能です。
穴あけ/輪郭切削/残部切削/削り出し切削/ヘリカル切削/テーパ切削/領域切削/面切削/任意軌跡面切削/要素指示面切削/池飛び面切削/島残しポケット/渦巻きポケット/突き切削/深掘り切削/トロコイド切削/文字ケガキ切削
旋削
加工現場に育てられた信頼の旋削機能
荒-コンタリング加工
荒加工は内外径を水平・垂直方向に加工します。切り込み量を均一にする最適化、ノーズR補正、複合サイクル出力などの機能を持ちます。
仕上げ加工
バイトにかかる負荷軽減のため、加工形状を元に切り込み方向を自動判定する機能、コーナーでの送り速度の減速機能などの選択が可能です。
溝加工
コーナRや面取り付の角溝や、任意形状を形状取りして指示する溝を加工します。溝の左中右の3方向のいずれかで加工順序を指示して荒加工し、次にバイトを形状に沿って動かし仕上げます。
ねじ加工
メートルねじ・ウイットワースねじ・台形ねじ・非定型ねじやボールねじ等の加工指示が可能。JISで規定されている各種ねじについては、データベースからねじパラメータを呼び出します。






